Custom Waste Heat Boiler Manufacturer
Gelan supplies custom waste heat boilers for industrial heat recovery projects.
This product range includes HRSG, one of the most widely used waste heat boiler types in gas turbine and power-related systems.
- Designed around gas condition, steam duty, and layout
- For HRSG, SRU, and incineration service
- NDT and hydrotest before shipment
- Clear handover documents
What a Waste Heat Boiler Does in Your Project
A waste heat boiler turns lost heat into useful steam for your plant. It helps you cut fuel use, lower exhaust temperature, and improve overall energy efficiency. It is usually installed after a high-temperature heat source, where flue gas or process gas still carries usable heat.
Fired Heater Exhaust
Turns flue gas heat into useful steam instead of letting it leave through the stack. This helps reduce fuel demand, improve heater efficiency, and make better use of heat already paid for.
SMR / Reformer Exhaust
Converts reformer exhaust heat into steam that can be reused in the system or elsewhere in the unit. This improves overall energy use and reduces the need for extra steam generation.
Incinerator / TO Exhaust
Recovers useful heat before discharge and turns it into steam. This reduces wasted energy and lowers gas temperature for the next treatment step.
Process Gas Cooling
Cools hot process gas to the required temperature while recovering heat at the same time. This avoids wasting usable heat and adds steam recovery to a cooling step that would be needed anyway.
Turns flue gas heat into useful steam instead of letting it leave through the stack. This helps reduce fuel demand, improve heater efficiency, and make better use of heat already paid for.
Converts reformer exhaust heat into steam that can be reused in the system or elsewhere in the unit.
This improves overall energy use and reduces the need for extra steam generation.
Recovers useful heat before discharge and turns it into steam. This reduces wasted energy and lowers gas temperature for the next treatment step.
Cools hot process gas to the required temperature while recovering heat at the same time. This avoids wasting usable heat and adds steam recovery to a cooling step that would be needed anyway.
Types of Waste Heat Boiler by Heat Source and Process
Heat Recovery Steam Generator (HRSG)
- Used for gas turbine exhaust heat recovery
- Generates steam from high-temperature exhaust gas
- Common in power and cogeneration systems
Other Common Waste Heat Boiler TypesAvailable in: Water Tube / Fire Tube / Hybrid Design |
Incinerator WHB | TO / RTO WHB | Sulfur Recovery WHB |
Ammonia / Process WHB |
Oil & Gas WHB |
| Typical Heat Source | Incinerator exhaust | TO / RTO exhaust | SRU gas | Process gas | Heater / reformer exhaust |
| Main Purpose | Recover heat before discharge | Recover heat and lower gas temperature | Cool process gas and recover heat | Cooling with steam recovery | Improve overall energy use |
Custom WHB and HRSG solutions based on heat source, gas condition, and steam duty.
Typical WHB Design Range and Configuration
| Item | Typical Options |
|---|---|
| Heat Source | Fired heater flue gas, SMR / reformer exhaust, incinerator / TO exhaust, process gas, gas turbine exhaust |
| Main Duty | Steam generation, steam superheating, gas cooling, waste heat recovery |
| Gas Condition | High-temperature gas, dusty gas, corrosive gas, sulfur-bearing gas |
| Structure Type | Shell and tube, flue gas type, modular box-type |
| Tube / Heating Surface | Water tube, fire tube, coil tube, finned tube |
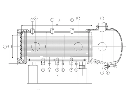
| Main Sections | Steam drum, evaporator, superheater, economizer, duct section |
| Delivery Form | Modular fabrication, segmented transport, site assembly |
*These design ranges are not fixed. In real projects, the final waste heat boiler configuration depends on heat source, gas condition, steam duty, layout, and transport requirement.
How Gelan Provides Waste Heat Boiler for Your Project
Designed Around Real Heat Source and Steam Duty
A waste heat boiler that does not match the real heat source or steam target will not deliver the expected recovery value.
Gelan approach:
- Design for fired heater flue gas, reformer exhaust, incinerator exhaust, or high-temperature process gas
- Match the heating surface and configuration to the required steam duty
- Select shell and tube, flue gas type, or modular structure based on actual service and layout
More Reliable Under Harsh Gas Conditions
High temperature, dust, sulfur, and corrosive gas can quickly shorten equipment life if the design is not right.
Gelan approach:
- Solve three major risks together: dew point corrosion, dust abrasion, and high-temperature duty
- Add anti-abrasion protection in high-wear gas inlet areas
- Use corrosion-resistant material solutions in low-temperature sections where needed
- 3–5 times longer service life than conventional designs in demanding conditions, based on your provided data
Get More Useful Steam from the Same Heat
Heat recovery has limited value if the gas is cooled but the steam output is still low.
Gelan approach:
- Design the heating surface for steam recovery, not only for gas cooling
- Use finned tube solutions where higher heat transfer is needed
- 98%+ fin welding rate helps keep thermal resistance low
- About 10% better heat transfer per unit length compared with common domestic finned tube alternatives
- 6% to 20% higher overall thermal efficiency in suitable applications
Easier to Transport and Install
A waste heat boiler can still create project pressure if it is too large or too difficult to ship and assemble.
Gelan approach:
- Use modular and sectional design where transport or lifting is limited
- About 20% smaller structure than conventional WHB designs in some services
- Split the unit into transportable sections such as duct, evaporator, economizer, superheater, and steam drum
- Match module size to transport limits and site installation conditions
Clearer Review and Smoother Handover
Even when the waste heat boiler is correctly built, missing inspection records or incomplete handover documents can still slow down review, shipment, and installation.
Gelan approach:
- Support RT / UT / PT / MT as required
- Provide hydrotest records before shipment
- Deliver inspection and handover documents for project review and installation
- Support modular shipment and on-site assembly when required
Applications of Waste Heat Boilers
Used in refinery systems to recover heat from fired heater flue gas or process tail gas and turn it into steam, helping reduce energy use and steam cost
Refining
Used in cracking, reforming, and other reaction systems where high-temperature process heat can be recovered for steam generation
Petrochemical
Used after SMR and similar hydrogen production systems to recover high-temperature exhaust heat and improve the use of process heat and steam together
Hydrogen Production
Used after incinerators, DTO, and similar systems to recover heat from high-temperature exhaust gas before discharge
Combustion & Emission Systems
Used in gas turbine exhaust recovery systems, where HRSG is one of the most common waste heat boiler applications in power and combined cycle service.
Power & Energy
Waste Heat Boiler Related Project Support By Gelan
Yulin Refinery Waste Heat Boiler Project
Project characteristics
Waste heat boiler system for Yulin Refinery, designed to recover heat from regeneration flue gas and steam superheater outlet flue gas, delivering 4.02 MPa, 348°C medium-pressure superheated steam.
Key requirement:
Stable steam output, outdoor-ready structure, modular transport, and practical field installation under refinery flue gas service.
Gelan support:
- Box-type modular WHB structure
- Section-based delivery including inlet duct, superheater, evaporator, economizer, outlet duct, and steam drum
- Module sizing based on road transport limits
- Shipment and on-site installation support
Result:
- 4.02 MPa, 348°C medium-pressure superheated steam delivered
- Modular shipment and field assembly supported
- Easier transport and installation for a large refinery WHB system
Hydrogen Reformer WHB for a 12M t/y Refinery
Project background:
Waste heat boiler for the hydrogen production reformer section of a 12 million t/y refinery project in Quanzhou, supplied with a 70 m steel stack.
Key requirement:
High-temperature reformer exhaust heat recovery, refinery hydrogen production duty, and integrated project delivery.
Gelan support:
- WHB supply for reformer service
- High-temperature exhaust heat recovery design
- Integrated supply with 70 m steel stack
Result:
- Installed in a 12 million t/y refinery hydrogen production project
- Applied in reformer waste heat recovery service
Related Equipment for Waste Heat Recovery Boiler
Waste heat boilers are often used together with upstream heat sources, downstream heat recovery equipment, and key boiler components in industrial heat recovery systems.
Steam Methane Reformer
A common upstream heat source where WHB is used to recover high-temperature exhaust heat.
Direct Thermal Oxidizer (DTO)
Used with WHB in thermal oxidation systems for exhaust heat recovery and gas cooling.
Finned Tube / Tube Bundles
Key heat transfer components used in many WHB designs to improve recovery performance.
FAQs About Waste Heat Boilers
What is a waste heat boiler?
A waste heat boiler is a unit that recovers heat from hot flue gas or process gas and turns it into useful steam. It is often used after fired heaters, reformers, incinerators, and other high-temperature systems where a large amount of heat would otherwise be lost.
Is HRSG a type of waste heat boiler?
Yes. HRSG is one of the most common waste heat boiler types. It is mainly used in gas turbine and power-related systems, where turbine exhaust heat is recovered to generate steam. This page covers WHB as the main product category, with HRSG as one important application type.
What is the difference between a waste heat boiler and an HRSG?
A waste heat boiler is the broader product category. HRSG is a more specific type usually linked to gas turbine exhaust recovery. In simple terms, all HRSGs are used for waste heat recovery, but not all waste heat boilers are HRSGs.
What information is needed to quote a waste heat boiler?
The key inputs are usually:
- heat source type
- gas temperature
- gas flow
- gas composition
- required steam pressure and steam output
- layout or transport limits
If the duty is more complex, details such as dust level, sulfur content, corrosion risk, and downstream temperature requirement also matter. This helps avoid a quotation based only on generic assumptions.
How do I know whether I need a water tube or fire tube waste heat boiler?
Gelan can support both structure selection and project-specific configuration when the service data is clear.
Can a waste heat boiler be designed for dusty or corrosive gas?
Yes, but the design has to match the real service condition. High-temperature gas, sulfur-bearing gas, and dusty exhaust can lead to fast wear or corrosion if the heating surface and material selection are not right. This is why gas condition is one of the first things reviewed in WHB design.
Can waste heat boilers be used in sulfur recovery, incineration, or ammonia service?
Yes. Waste heat boilers are widely used in:
- sulfur recovery service
- incinerator / DTO exhaust heat recovery
- ammonia and other process gas cooling duty
The main difference is not whether a WHB can be used, but how the unit should be configured for that specific gas condition and heat recovery target.
Can a waste heat boiler be delivered in modular form?
Yes. For large projects, a waste heat boiler can be split into transportable sections such as duct, evaporator, economizer, superheater, and steam drum. This makes transport and site installation more practical, especially when road limits or site space are strict. In your uploaded project material, this modular route was clearly used in refinery WHB delivery and installation.
Need a Custom Waste Heat Boiler or HRSG?
Share your requirement with Gelan. Basic service information can help us review the application faster.